德国格屋自动门-转角平移自动门-感应门(推拉门)compaceMaster CMW/CMW-F系列:
◆ 能够使建筑出入口区域实现独特设计风格的推拉门;
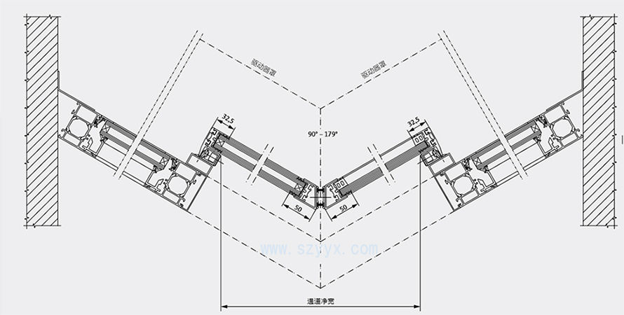
◆ 可用来实现 90° ~ 179° 之间的任意转角;
◆ 相应的安全传感器可以保护主关闭边,符合 DIN 18650 标准的要求;
◆ 驱动器实际高度为 100 mm,窄框型材系统的顶端门扇型材被内置在驱动器之中,并且通过护罩将其遮盖;
◆ 这样就很容易将转角推拉门内置到所有支撑结构之中,实现优美的外观。
德国格屋自动门-转角平移自动门-感应门(推拉门)econoMaster VMW/CMW-F系列产品供应、定制设计、安装与维修(深圳市)乙元兴自动门有限公司
服务咨询:0755-25632912
技术参数

格屋转角平移门-推拉门 compactMaster CMW/CMW-F 系列具有以下特性:
■ 采用双电机技术的冗余驱动器(compactMaster CMW-F),适用于逃生和急救路径;
■ 采用可以更换的橡胶轴承滑动面,滑动稳定性很高;
■ 驱动器实际高度只有 100 mm;
■ 开启速度快:达到 0.9 m/s;
■ 操作简单,一目了然;
■ 在滑车上内置锁定装置自学式控制系统,有多种连接和调整方法。
产品结构(示意图)



© 2019 深圳市乙元兴自动门有限公司 版权所有 粤ICP备12006120号
